Nhà liền kề 7m tại Đốc Ngữ – trải nghiệm sống như biệt thự
Acong.vn _ Nhà liền kề 7m x 15m – nhưng trải nghiệm sống như biệt thự
Phần lớn nhà liền kề gặp cùng một bài toán: diện tích không nhỏ, nhưng không gian lại dễ bí, cứng và đơn điệu.
Đối với nhà liền kề tại Đốc Ngữ (Hà Nội) này, A Cộng chọn cách làm cải tạo khác: không thay đổi khung nhà cũ – mà thay đổi cách cảm nhận không gian bằng giải pháp thiết kế tạo nhiều mặt thoáng hơn và sử dụng những đường cong mềm mại từ hình khối kiến trúc bên ngoài đến nội thất toàn bộ bên trong nhà.

Tổng thể mặt đứng sử dụng các đường cong mềm, ban công bo tròn và mảng kính lớn giúp công trình nhẹ và thoáng hơn so với nhà liền kề thông thường.

Hình ảnh thiết kế sân trước. Tường sơn giả đá tạo hiệu ứng khỏe khoắn và hiện đại
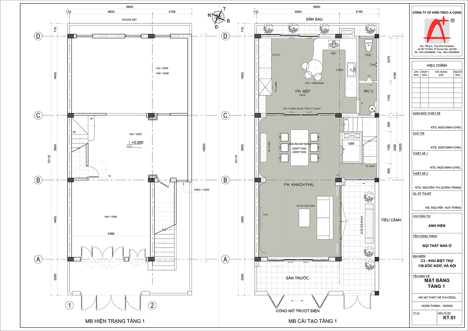
* Mời các bạn tham quan Phòng khách, phòng ăn và bếp tại tầng 1:

Không gian phòng khách liên thông, kết hợp thông tầng giúp tăng độ thoáng cho nhà liền kề

Vách ốp mảng tường ti vi và hệ rèm vải có họa tiết dọc làm tăng điểm nhấn theo chiều cao cho khoảng thông tầng quý giá


Bố cục mở giúp kết nối phòng khách và khu bếp, tăng tương tác và tối ưu diện tích sử dụng.

Sự kết hợp hài hòa giữa các vật liệu chính (gỗ, đá, kính) vừa tạo nét hiện đại và vừa có cảm giác ấm cúng cho nội thất nhà liền kề


Khu bếp gọn gàng, bố trí hợp lý theo tam giác công năng, sử dụng vật liệu sáng giúp không gian sạch và dễ sử dụng.


Bar nhỏ xinh, uống cong vui mặt, tích hợp đèn Led hắt chân làm mềm cho căn nhà lô phố.

Cầu thang bộ lên tầng 2, một kiểu dẫn dắt vui mắt bằng ánh sáng
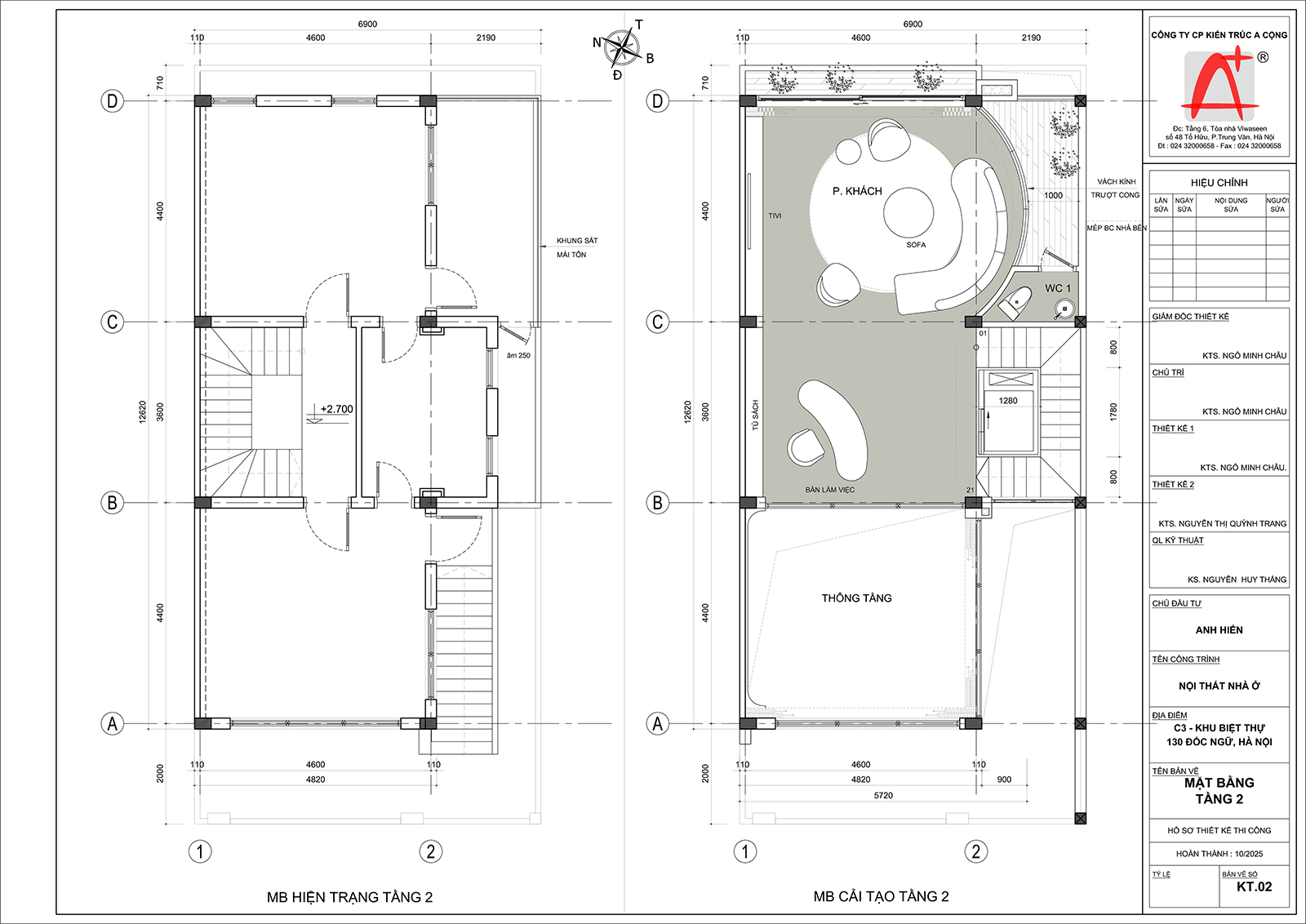
* Mời các bạn xem phòng sinh hoạt gia đình và góc làn việc tại tầng 2:


Không gian làm việc bố trí gọn gàng, tận dụng ánh sáng tự nhiên gián tiếp và có góc nhìn đẹp ra không gian thông tầng


Phòng sinh hoạt gia đình tuy nằm ở mặt sau nhà, nhưng cảm giác nhà lô phố hoàn toàn biến mất nhờ hệ vách cửa kính lớn tại cả 2 mặt của phòng.
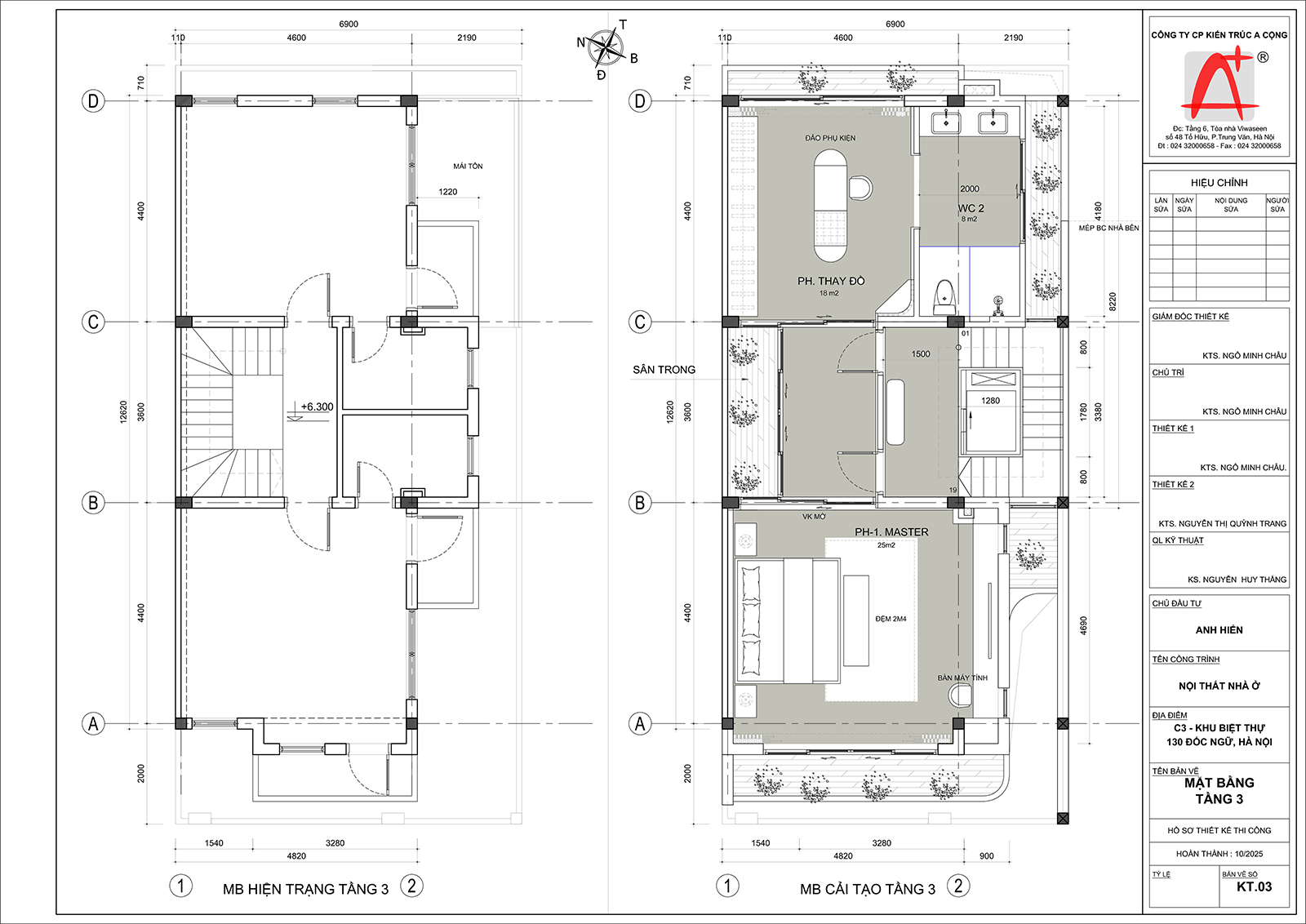
* Mời các bạn xem tiếp thiết kế nội thất phòng ngủ master tại tầng 3:


Sảnh tầng 3, với cửa mở vào phòng ngủ master

Phòng ngủ master thoáng rộng, sang trọng nhờ sử dụng đúng tỷ lệ giữa gỗ và vải. Các chi tiết cong được nhắc lại và khai thác trên vách ốp tường khiến căn phòng thêm sang trọng

Một chi tiết thú vị nữa là hệ đèn sao (ánh sáng truyền qua sợi cáp quang nhỏ trên trần) tạo hiệu ứng không gian tĩnh lặng và dịu dàng vào ban đêm


Các chi tiết nội thất tinh tế

Hàng lang nối từ phòng ngủ sang phòng thay đồ và phòng tắm, tuy là diện tích phụ nhưng vẫn được thông thoáng bằng giếng trời nhỏ

Hệ tủ quần áo lớn, hiện đại và gọn gàng

Bàn trang điểm duyên dáng xứng đáng có mặt tại một vị trí đẹp trong phòng thay đồ rộng rãi này


Phòng tắm "sang, sạch, đẹp" tương xứng với sự sang trọng của ngôi nhà
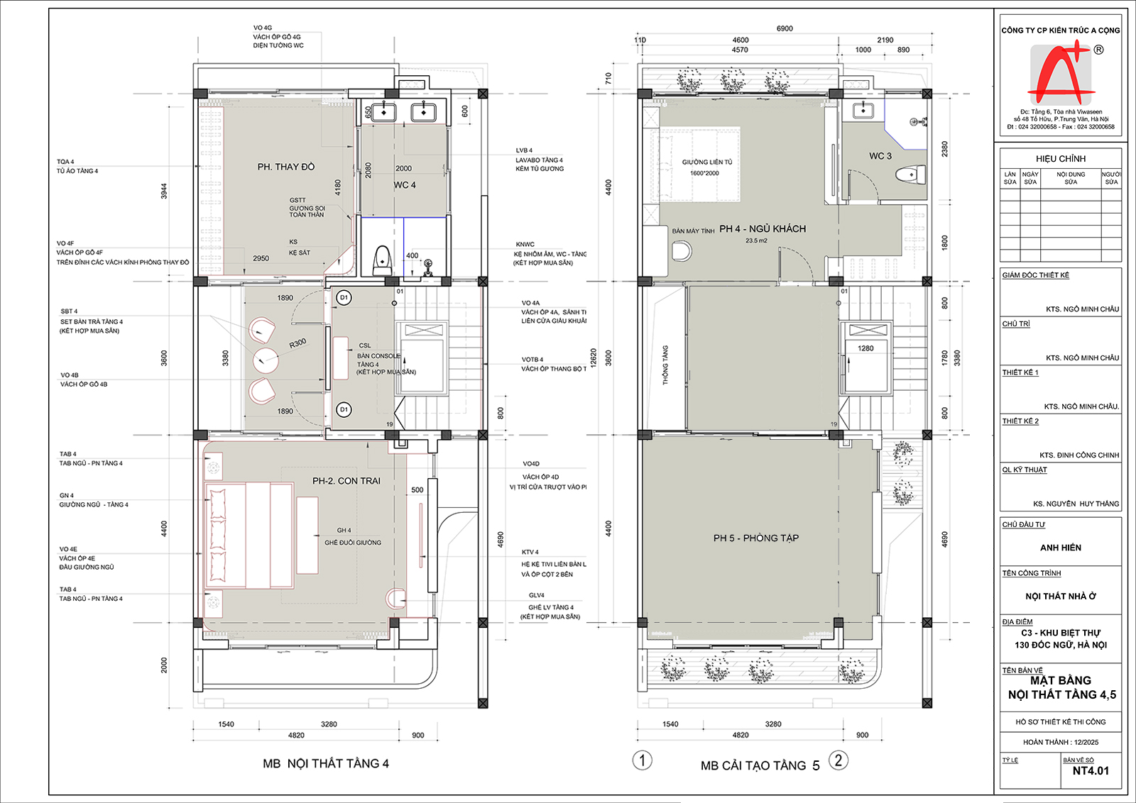
* Mời các bạn xem tiếp thiết kế nội thất phòng ngủ con tại tầng 4:



Giếng trời giữa nhà- giải pháp tăng thông thoáng hiệu quả cho thiết kế nhà liền kề



* Mời các bạn xem tiếp thiết kế nội thất tầng 5 gồm phòng ngủ khách và phòng tập thể thao:

Phòng ngủ dự phòng cho khách ở lại và phòng tắm cho khách


Phòng tập thể thao thoáng rộng phía trước


Thiết kế sân thượng của ngôi nhà
.
* Mời các bạn xem thiết kế kiến trúc bên ngoài ngôi nhà liền kề 7m này với những đường cong ấn tượng:


Các chi tiết thiết kế cong được đưa vào có kiểm soát, giúp làm mềm các góc vuông cứng của nhà ống, tạo sự chuyển tiếp nhẹ giữa các không gian, và làm cho ngôi nhà có nét riêng biệt.




Một ngôi nhà đẹp không chỉ nằm ở loại hình, mà còn nằm ở cách tổ chức không gian bên trong nữa. A Cộng đã giữ nguyên khuôn khổ nhà liền kề, nhưng nâng trải nghiệm sống lên mức sang trọng của biệt thự trong thành phố.
A Cộng thiết kế T3/2026
Bạn muốn có cảm giác sống như trong biệt thự ngay trong căn nhà liền kề của mình?
Hãy liên hệ với A Cộng để được tư vấn giải pháp phù hợp với hiện trạng nhà của bạn!

