Nhà phố kết hợp văn phòng– Tạo dấu ấn bằng ban công chéo
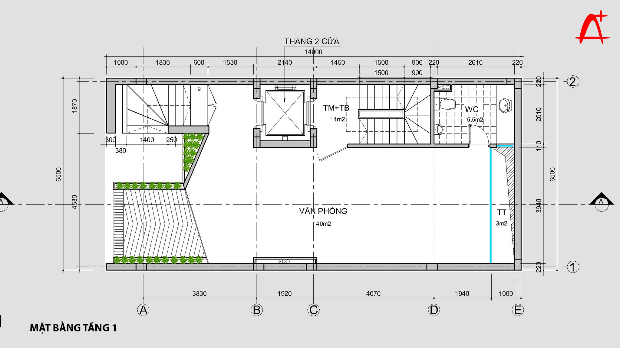
Acong.vn _ Với khu đất liền kề vuông vức 6,5m x 14m tại Nam Trung Yên, giải pháp phổ biến là thiết kế mặt tiền phẳng và kính lớn để khai thác tối đa mặt thoáng.
Công trình nhà phố kết hợp văn phòng này, A Cộng chủ động tạo hình để tăng giá trị sử dụng và độ nhận diện cho ngôi nhà.
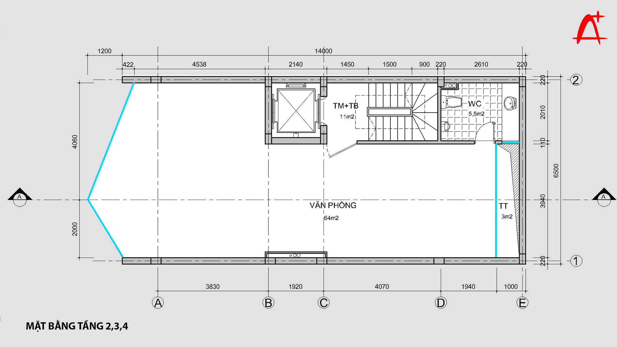
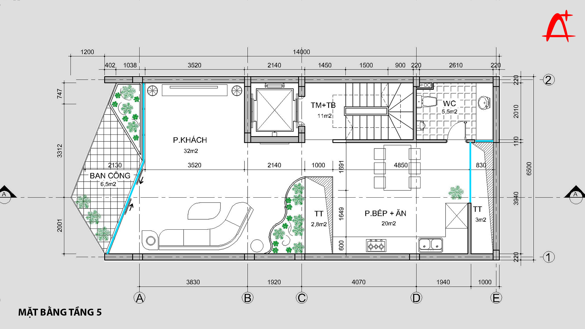
Giải pháp là thiết kế ban công các tầng chéo và so le, tạo chuyển động. Thay vì các ban công xếp chồng, kiến trúc sư thiết kế ban công lệch hướng theo từng khối. Khối văn phòng (từ tầng 1 đến tầng 4) và khối nhà ở (tầng 5, 6, 7 và tum) được phân tầng mạch lạc, phản ảnh rõ công năng sử dụng bên trong.







Ngoài hình khối kiến trúc, kiến trúc sư A Cộng cũng khéo léo sử dụng vật liệu phổ thông nhưng hiệu quả:
- Kính kết hợp khung sắt và nhôm đen mang lại nét hiện đại, khỏe khoắn.
- Lam gỗ giúp giảm 1 chút nắng và tạo nhịp điệu trên mặt đứng. Màu ấm của lam gỗ làm cân bằng lại với vẻ lạnh của kính và sắt.
- Gạch thô tuy tương phản mạnh với kính và sắt nhưng lại hài hòa về về thẩm mỹ, tạo nên sự chắc chắn cho công trình.
Bạn đang có mảnh đất liền kề trong phố nhưng chưa biết làm sao để “khác đi”?
Hãy để A Cộng giúp bạn tạo dấu ấn bằng những giải pháp đơn giản nhưng hiệu quả!
* [Tư vấn] Thiết kế nhà phố kết hợp văn phòng- những điều chủ nhà cần cân nhắc

