Thiết kế nội thất penthouse Dream Town – Đục thông tầng để tạo đẳng cấp khác biệt
Acong.vn _ Từ một căn hộ duplex thông thường, A Cộng đề xuất giải pháp đục sàn tạo thông tầng tại phòng khách, giúp tăng chiều cao không gian, kết nối hai tầng và tạo nên trải nghiệm sống đúng chất penthouse. Thiết kế tập trung vào tỷ lệ, ánh sáng và sự liền mạch, mang lại cảm giác sang trọng nhưng vẫn thực tế và dễ thi công.

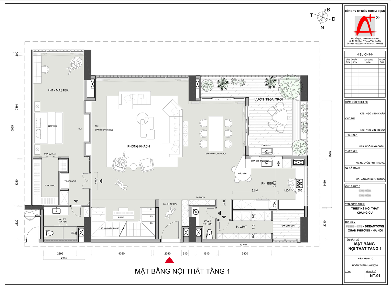
Hiện trạng căn hộ duplex với diện tích sàn 2 tầng là 245m2 và 220m2. Trước cải tạo: thấp đều, chia tầng, thiếu điểm nhấn.

Mặt bằng cải tạo nội thất tầng 1 căn hộ penthouse Dream Town, Hà Nội

Góc nhìn đầu tiên khi bước chân vào căn hộ

Khoảng thông tầng giúp phòng khách tăng chiều cao gấp đôi, mở rộng tầm nhìn theo phương đứng, và kết nối trực tiếp với tầng trên.

Sau cải tạo: Có khoảng cao 2 tầng, ánh sáng và điểm nhìn xuyên suốt


Từ một phòng khách thông thường, không gian trở thành trục trung tâm có chiều sâu và cảm xúc. Khoảng thông tầng rộng 18m2 này là một điểm nhấn đắt giá mà các căn hộ thông thường không thể có.


Không gian được “nâng cấp” từ căn hộ duplex thành căn hộ penthouse sang trọng.

Phòng khách liên thông bếp và bàn ăn trong căn hộ

Tủ rượu âm tường kết hợp đèn LED trong phòng khách và cũng rất gần bàn ăn





Góc bar kết nối thú vị, nằm giữa khu bàn ăn, lối ra sân (lô gia) và khu bếp

Không gian thư giãn ngoài trời

Bếp phụ bên ngoài kết nối với bếp chính trong nhà

Hệ tủ bếp lớn hình chữ U với trang thiết bị âm tủ hiện đại



Khu wc chung và khu giặt phơi kín đáo

Thiết kế phòng ngủ master tại tầng 1




Phòng thay đồ và hành lang trong phòng ngủ master

Phòng tắm master

Cửa chính vào căn hộ và cầu thang dẫn lên tầng 2


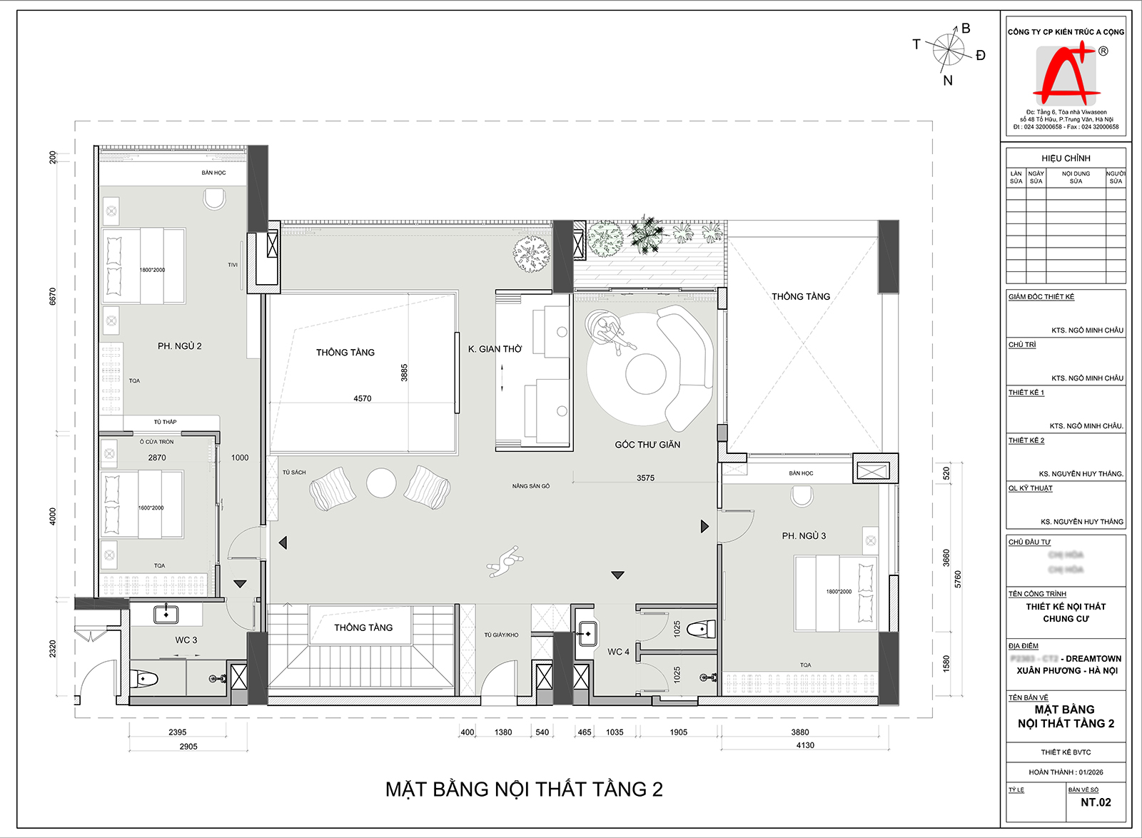
Mặt bằng cải tạo và bố trí nội thất tầng 2- căn hộ penthouse Dream Town

Không gian thông tầng nhìn xuống phòng khách

Thiết kế phòng thờ trang nghiêm tại tầng 2

Góc sinh hoạt chung tầng 2


Thiết kế phòng ngủ tại tầng 2



Một căn hộ penthouse không nằm ở số tầng, mà nằm ở cách tổ chức không gian. Trong thiết kế căn hộ Dream Town này, điểm mấu chốt không phải là nội thất đắt tiền, mà là quyết định đục thông tầng đúng chỗ, đúng cách.
Nếu bạn đang sở hữu căn hộ duplex hay penthouse nhưng chưa khai thác hết giá trị không gian, hãy bắt đầu từ một bản thiết kế sáng tạo. A Cộng có thể giúp bạn có một thiết kế đẹp và tối ưu.
Kiến Trúc A Cộng - Cung cấp giải pháp tổng thể về Nhà ở và Công trình dân dụng !
A Cộng thiết kế T2/2026

